Description
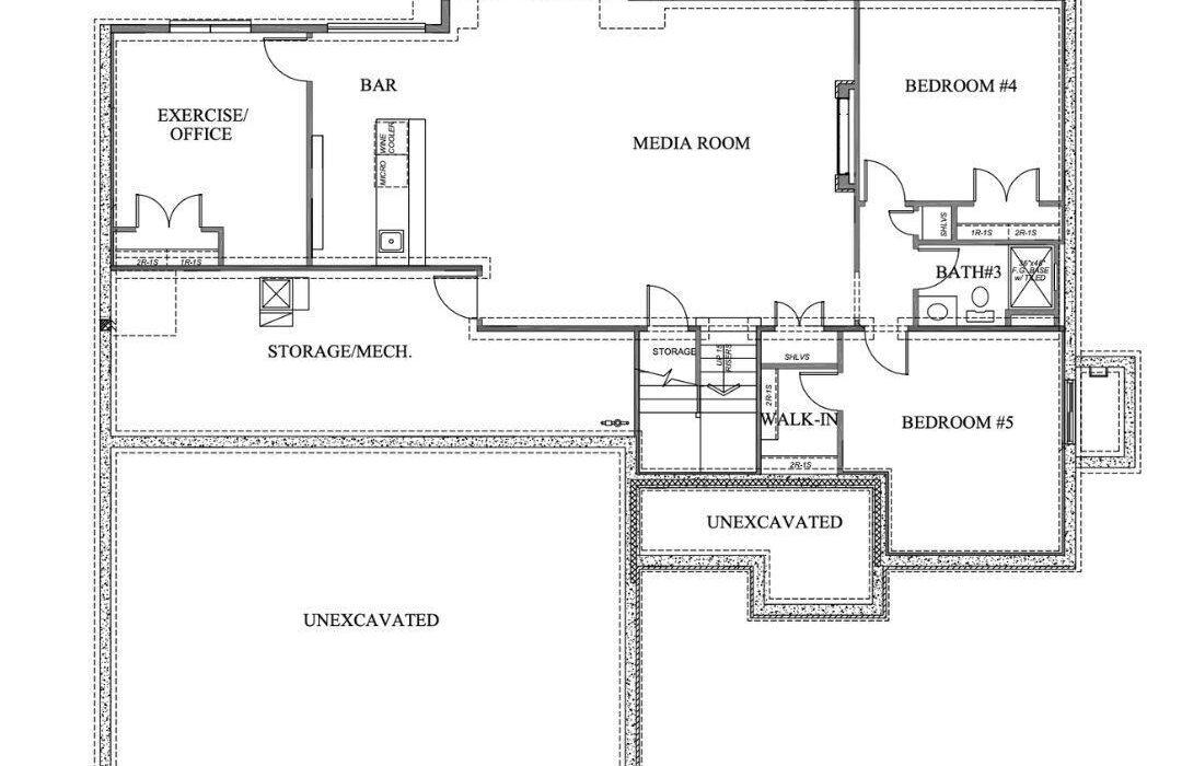
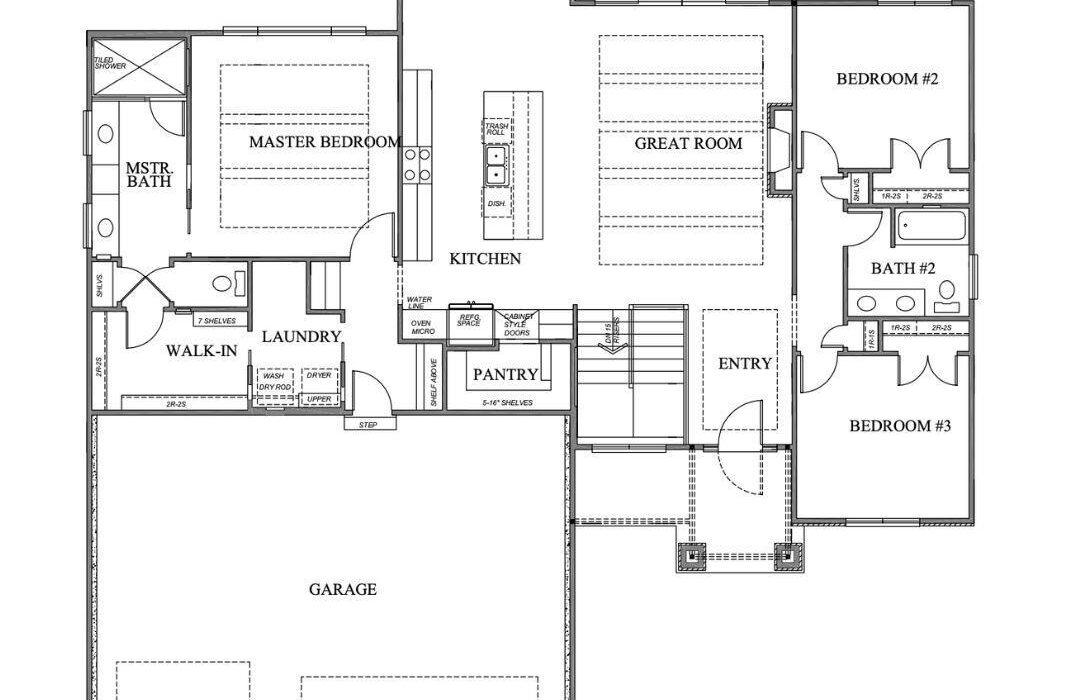
Photos of similar home. Under Construction – custom Casa Blanca Ranch by Woodland Homes! This 4 bed, 3 bath ranch home offers 3,264 total finished sq ft and features quartz countertops, Jack & Jill bath, oversized garage, large family room, beamed cathedral ceiling, wet bar/rec area in lower level, and stone to ceiling fireplace. Open and spacious main floor plan with beautiful primary bedroom and bath that wraps around to the laundry and mudrooms. Fully equipped kitchen. Quality construction with high-end finishes throughout.
School district
Papillion-La Vista
Garage
3
Bedrooms
4
Baths
3
Price
$839,977
Style
Ranch
Sq Footage
3264
Agent
Mark Ciochon
Agent Phone
Agent Email